

Brief
Your client has purchases a Victorian house, which is a protected structure in a busy Dublin suburb. it is proposed to convert the property into 4 apartments, to be fully furnished at the high end of the market. Each apartment must be double story, and have internal connecting stairs within the apartment. Apartments must contain :
Living room
Kitchen/dining
Main bathroom
Master bedroom with en suite
Guest bedroom
Moodboard


Chosen Revival: Greek Revival
Floorplans


Chosen Apartment to Design


Apartment 2
Living Room


Sample Board




Renders
Kitchen


Sample Board




Renders
Bedroom


Sample Board




Renders
Bathroom


Sample Board




Renders
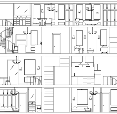
Sections








Long Section Cad
Long Section Photoshopped
Latitude Section Cad
Latitude Section Photoshopped
Portfolio
Showcasing my interior design projects and skills.
© 2025. All rights reserved.