Hotel design project
Redesigning of a building on Dun Laoghaire Seafront


Concept
As part of our research we had to go to Dun Laoghaire and draw our surroundings. I found the paneling design on the door really interesting and started sketching that. I used it as inspiration for the void design, which was carried out through the rest of the building.
















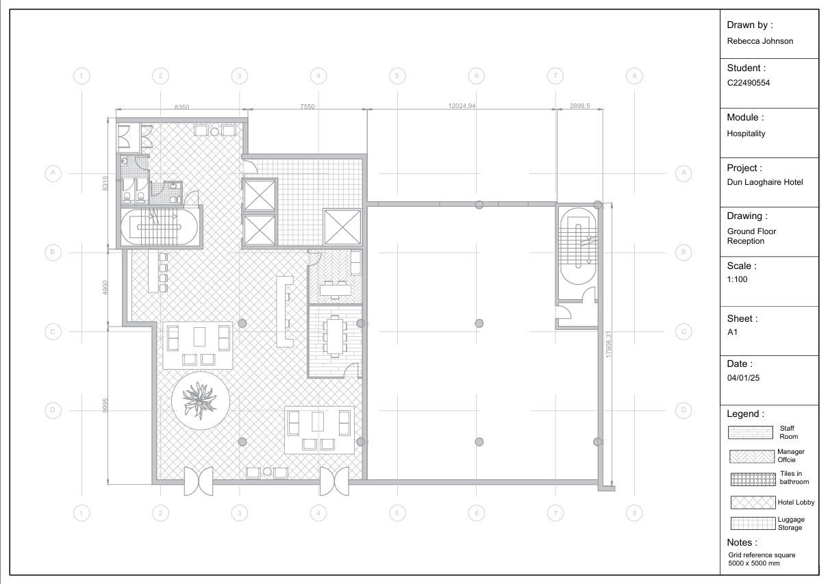
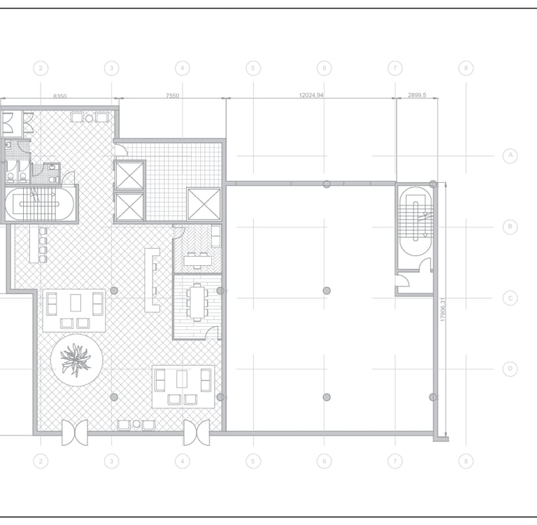
Ground Floor - Reception








The reception on the ground floor is where you would get the best view of the void which goes all the way up to the second floor. I wanted the reception to look luxurious but still inviting, so I used burgundy panels on the wall and on the reception desk, with dark green marble on the desk, to match the wall paper.
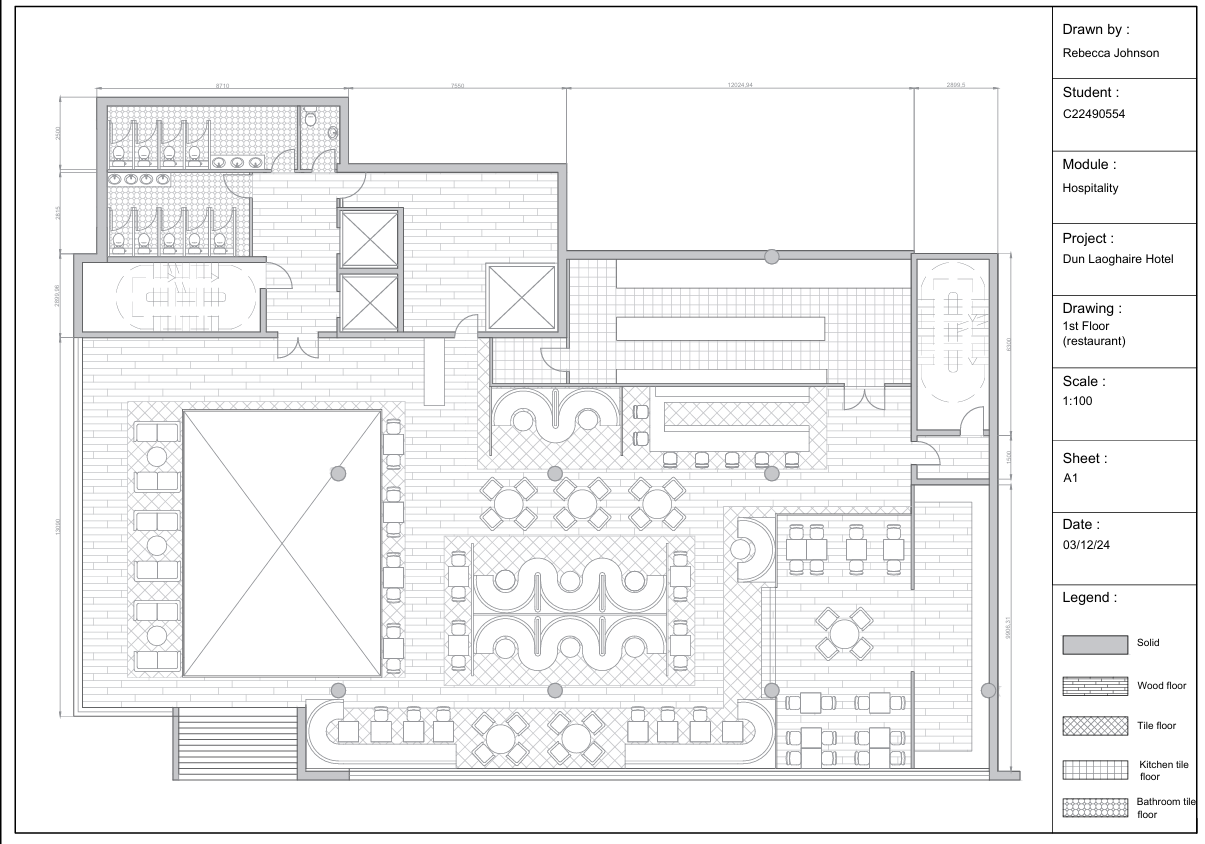
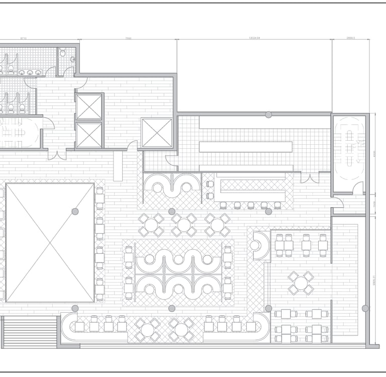
First Floor - Restaurant










I carried the void deign through the restaurant and used it as wall partitions between tables to add sections/privacy. I wanted to be bold with colour and patterns so I went with a really rich red and green, and integrated them between the colours of the walls and the seats
Second Floor - Bar










For the bar I wanted to keep a similar feel to the restaurant, but use different colours. I went for blue and a vibrant burnt orange. I used a patterned wall paper along one of the only walls, as most of the walls have winows.
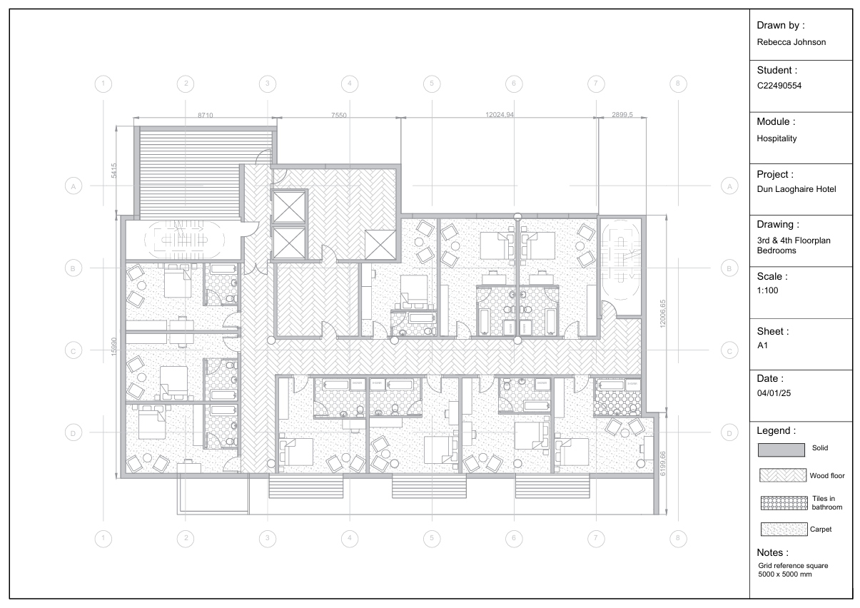
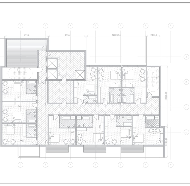
Third & Fourth Floor- Bedroom & Bathroom










I incorporated the void deign into the bedroom by using it as a partition between the hall and the room. I wanted the bedroom to be a calm space so I used a nice muted green wall paper. The bathroom I wanted to have fun with so I went with a striking burgundy colour, which you can see little pops of in the bedroom.
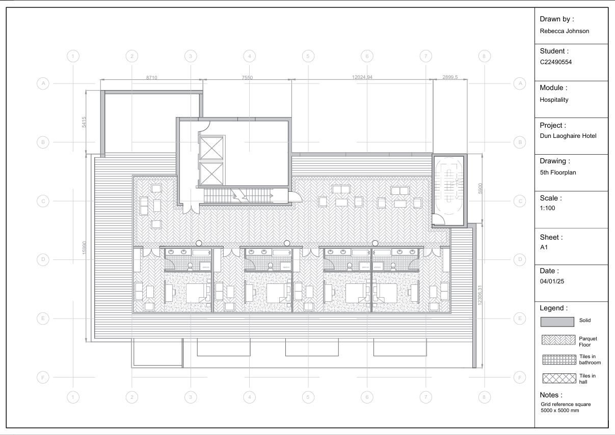
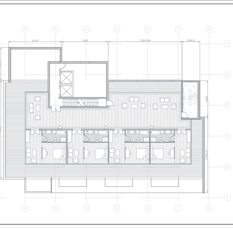
Fifth Floor- Suites


Portfolio
Showcasing my interior design projects and skills.
© 2025. All rights reserved.