Office design project
Redesign of a Vodafone shop at 48, Grafton Street, Dublin 2 for an architectural practice


Client A
Concept and Moodboard
As a research topic I was given Frank Duffy and his concept 'Shearing Layers'. I decided to make the office DEGW, an architectural office which was co founded by Frank Duffy in 1971. I went with a mid-century modern style interior.


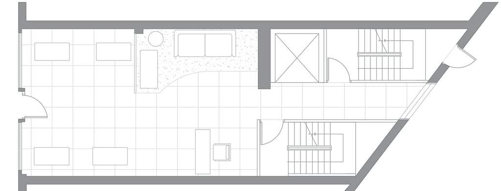
Basement










Basement includes a library and canteen for staff, as well as a bathroom, an elevator that goes up to the rest of the floors and a fire stairs.
Canteen
Library
WC
Storage
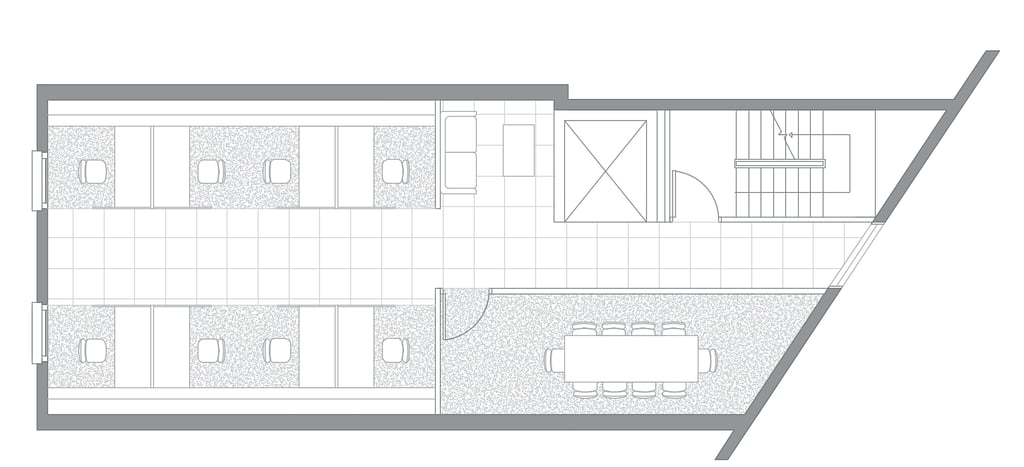
Ground floor










The ground floor includes an exhibition at the front which is open to the public. The exhibition will include projects that the company has completed, showcasing miniature models of the buildings and posters. Past the exhibition is the reception for the office, complete with a waiting area. Down the hall is a lift and a set of fire stairs.
Library
Exhibition
Reception
First Floor










The first floor houses the workshop which over looks the reception through a glass window. At the back there is a small seating area, a 'critique area'.
Workshop
Critique Area
Storage
Second Floor










The second floor has the main office space which fits eight designers and the boardroom. I wanted to make sure to incorporate a lot of storage/shelf space, and for the designers to have their own space, while it still being open.
Office space for 8 designers
Boardroom
Third Floor










The third floor is where the directors offices, and the associates offices are.
Directors Office 1
Directors Office 2
Associates Office


3D section render
Portfolio
Showcasing my interior design projects and skills.
© 2025. All rights reserved.